
金秋十月,隨著興榮集團供應鏈信息大樓的封頂,興榮產業園迎來了三期項目的又一突破,園區建設工作開啟了一個全新的發展篇章。園區設施現已陸續投入使用,正蓄勢待發,迎接更多企業的高效進駐與發展。
“高樓萬仞平地起,歲月匠心鑄輝煌。”從藍圖初現到高樓聳立,每一磚一瓦都凝聚著興榮集團和建設者們的智慧與心血。今日的封頂,是時間的見證,更是品質的承諾。這不僅是一座廠房建筑的封頂,更是無數企業發展與騰飛的起點。


聯系我們
企業入駐請聯系招商部:
莊先生13906041532 陳先生13850057575 胡先生18250701181
郵箱:xr@amoyxingrong.com
地址:福建省廈門市同安區同集北路300
三期項目
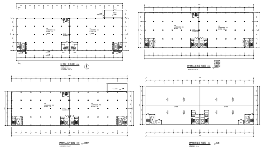
三期項目作為興榮產業園發展的重要里程碑,總建筑面積達6萬平方米,包含兩棟7層框架結構的標準倉儲與加工廠房雙用途建筑,每層約4000平方米,層高設計靈活,能夠滿足各類企業的多樣需求。三期項目不僅將園區總面積擴展至27萬平方米,也進一步優化了產業布局,有效提升產業上下游物流效率,降低物流成本,利于產業鏈整合與行業互動交流,為形成更加集聚效應和優質的產業環境打下堅實基礎。
?高標準廠房:每棟7層,每層約4000平方米,廠房荷載按照1.5T/m2設計。
?層高:1層7.9米,2-3層6米,4-7層5.7米。
?先進配置:每棟配置4部9噸貨梯,一樓整層自帶1.3米高出貨平臺。
三期廠房平面圖
三期廠房配置情況
園區概況
興榮產業園是經國家發改委立項的廈門市重點物流園項目,是廈門打造國際性物流樞紐城市的重要支撐項目和抓手。由興榮集團投資近10億建設,建筑面積達27萬平方米。產業園具有建設標準化、智能化、數字化與供應鏈和產業鏈高度融合的特點,并以綠色、低碳環保為理念,具備有效解決城市物流短板的能力。
興榮產業園項目規模體量位居福建省前列。主要業務包含產業園廠房租賃、汽車銷售與保養、物流與倉儲、物業管理、加工制造等,目前園區已入駐有:汽車4S店、倉儲、貿易、加工等企業。集團頂層規劃園區,致力于將物流園打造成為集新能源汽車產業園、物流供應鏈、工業中轉鏈、城市綜合一體化的國際物流中心。
園區布局
產業園采用先進的功能分區理念,將生產區與生活區獨立設置,高效管理。廠房建筑設計以簡潔大方為特色,色彩上采用紅白搭配,與周邊環境和諧共存。立面設計開敞明亮,既表現了現代園區的高效快捷,又塑造了開放與穩重并存的現代企業形象。園區內部設施不僅包括現代化的物聯網與供應鏈系統,還覆蓋企業的生產、管理等全業務流程。從信息、配貨,到辦公和生活設備設施,園區將為企業提供“一站式”全方位支持,幫助企業降低運營成本,提高生產效率。同時,光伏系統的應用為園區提供了持續、綠色的能源供應,符合現代化低碳環保的趨勢。
企業責任
除了基礎設施的建設,興榮集團設施還積極參與區域內的社會與經濟建設。園區的建設不僅創造了大量的就業機會,也為企業之間的合作與發展提供了優質的平臺。通過創新的物流管理技術和供應鏈整合方案,興榮產業園正成為區域經濟的有力推動者。隨著園區日漸完善,更多的企業將加入這個充滿活力與創新的高效產業平臺。憑借卓越的區位優勢和完善的配套設施,物流、汽車、電商、汽車4S店、加工制造等行業的企業將在這里找到最合適的經營環境。未來,興榮將依托這一產業園基地,加強物業服務和品質提升,為客戶提供更加優質、高效、便捷的辦公經營空間。同時,我們也期待與各位合作伙伴攜手并進,打造一個充滿活力、可持續發展的現代化標桿物流園區,共同推動區域的發展和繁榮。